| PERT图 VS 甘特图(Gantt图) | |
| PERT图描绘出项目包含的各种活动的先后次序,标明每项活动的时间或相关的成本,能清晰地描述子任务之间的依赖关系; PERT(Program Evaluation and Review Technique)即计划评估和审查技术,它用网络图来表达项目中各项活动的进度和它们之间的相互关系,并在此基础上进行网络分析和时间估计,用于协调整个计划的完成。 进度网络图 | 甘特图能清晰地描述每个任务从什么时候开始,到什么时候结束,以及任务之间的并行关系。但它不能清晰地反应出任务之间的依赖关系。 |
|
| |
项目进度管理是在规定的时间内,拟定出合理且经济的进度计划(包括多级管理的子计划),在执行该计划的过程中,经常要检查实际进度是否按计划要求进行,若出现偏差,便要及时找出原因,采取必要的补救措施或调整、修改原计划,直至项目完成。
总的来说,项目管理计划主要是基于项目进度管理计划编制的。在项目的进度管理计划的基础.上编制项目成本管理计划、设备设施采购计划、人力资源配置计划、风险管甲计划|和配置管理计划等。
项目的执行过程中难免会发生更改项目进度计划的行为。因而在进度管理计划的编制上要注意其弹性问题。同时对可能改变进度计划的因素早发现、早更改和做好后续工作的安排的工作,以保持项目的各项资源能够协调进行。


规划项目进度管理是为项目进度计划实施制定政策、程序,并文档化的过程。本过程的主要作用是为管理、执行和控制项目进度提供指南和方向。
在进度管理计划中规定项目进度管理的各过程及其工具与技术。进度管理计划确定进度规划的方法和工具,并为编制和控制进度计划建立格式和准则。在所选的进度规划方法中,规定进度编制工具的框架和算法,以便创建进度模型。一些耳熟能详的进度规划方法包括关键路径法(Critical Path Method, CPM)和关键链法(Critical Chain Method,CCM)。
| 进度管理计划 | 例如: |
| (1)项目进度模型制定。进度规划方法论和工具。 (2)准确度。规定活动历时估算的可接受区间,应急储备数量。 (3)计量单位。例如,用于测量时间的人时数、人天数或周数;用于计量数量的米、升、吨、千米或立方米。 (4)组织程序链接。 (5)项目进度模型维护。需要规定在项目执行期间,将如何在进度模型中更新项目状态,记录项目进展。 (6)控制临界值。它是在需要采取某种措施前,允许出现的最大偏差。通常用偏离基准计划中的参数的某个百分数来表示。 (7)绩效测量规则。需要规定用于绩效测量的挣值管理(EVM)规则或其他测量规则。例如,进度管理计划可以规定: 。确定完成百分比的规则。 。用于考核进展和进度管理的控制账户。 。拟用的挣值测量技术,如基准、公式、完成百分比等。 。进度绩效测量指标,如SV/SPI,用来评价偏离原始进度基准的程。 (8)报告格式。需要规定各种进度报告的格式和编制频率。 (9)过程描述。对每个进度管理过程进行书面描述。 |
|
WBS已经是识别出最小颗粒度的可交付成果,即工作包,定义活动,即将工作包再次分解,分解为完成项目可交付成果而需采取的所有活动。
其主要作用是,将工作包分解为活动,作为对项目工作进行估算、进度规划、执行、监督和控制的基础。滚动式规划。
| 输入 | 输出 |
| 进度管理计划,范围基准(WBS、WBS字典,范围说明书) 组织/事业 | 活动清单;活动属性;里程碑清单。 活动编码、活动描述、紧前活动、紧后活动、逻辑关系、提前量与
//定义活动需要关注活动的颗粒度。 |
![]() | |
排列活动顺序是识别和记录项目活动之间的关系,定义工作之间的逻辑顺序,以便在既定的所有项目制约因素下获得最高的效率。
项目进度网络图是表示项目活动之间的逻辑关系的图形。前导图法和箭线图法是绘制项目进度网络图的两种不同的方法。
项目进度网络图可手工或借助项目管理软件来绘制。进度网络图可包括项目的全部细节,也可只列出一项或多项概括性活动。项目进度网络图应附有简要文字描述,说明活动排序所使用的基本方法。在文字描述中,还应该对任何异常的活动序列做详细说明。
估算活动资源,即明确完成活动所需的资源种类、数量和特性,以便做出更准确的成本和持续时间估算。
| 输入 | 输出 |
| 进度管理计划,活动清单,活动属性 资源日历 风险登记册 资源成本评估 | 活动资源需求, 资源分解结构RBS |
估算活动持续时间依据的信息包括:活动工作范围、所需资源类型、估算的资源数量和资源日历。
首先估算出完成活动所需的工作量和计划投入该活动的资源数量,项目日历+++资源日历,据此计算出完成活动所需的工作时段数(活动持续时间)。
注: 应该把活动持续时间估算所依据的全部数据与假设都记录下来。
| 输入 | 输出 |
| 进度管理计划, 范围基准(说明书+wbs+wbs词典) 活动清单,活动属性 资源日历 风险登记册 资源成本评估 活动资源需求, 资源分解结构RBS | l) 活动持续时间估算 |
|
| 制定项目进度管理计划,即把活动、持续时间、资源、资源可用性和逻辑关系代入进度规划工具,从而形成包含各个项目活动的计划日期的进度模型。 制订可行的项目进度计划,往往是一个反复进行的过程。随着工作推进,项目进度模型和计划需要不断续订与维护,确保进度计划在整个项目期间切实可用。 在本过程中,需要审查和修正持续时间估算与资源估算,创建项目进度模型,制订项目进度计划,并在经批准后作为基准用于跟踪项目进度。 |
//一旦活动的开始和结束日期得到确定,通常就需要由分配至各个活动的项目人员审查其被分配的活动,确认开始和结束日期与资源日历没有冲突,也与其他项目或任务没有冲突,从而确认计划日期的有效性。
| 输入 | 输出 |
| 1)进度管理计划 | 1)进度基准 进度基准是项目管理计划的组成部分。 2)项目进度计划是进度模型的输出,展示活动之间的相互关联,以及计划日期、持续时间、里程碑和所需资源。 项目进度计划中至少要包括每个活动的计划开始日期与计划结束日期。项目进度计划可以是概括(有时称 3)进度数据 进度数据是用以描述和控制进度计划的信息集合。进度数据至少包括里程碑、活动、活动属性,以及已知的全部假设条件与制约因素。所需的其他数据
4)项目日历 在一个进度模型中,可能需要采用不止一个项目日历来编制项目进度计划,因为有些活动需要不同的工作时段。编制进度计划可能需要对项目日历进行更新 |
| 进度计划的集中图形展示方式: 1. 横道图/甘特图,相对易读,常用于向管理层汇报情况。
通常没有时间刻度,纯粹显示活动及其相互关系,有时也称为“纯逻辑图”,如前导图法和关键路径法。项目进度网络图也可以是包含时间刻度的进度网络图,有时称为“逻辑横道图”,如图6-2所示的 逻辑横道图是在横道图的基础.上,加上箭线来表达活动之间的逻辑关系,活动用横道表示,横道的长度表示活动的持续时间,横道的坐标位置表示这个活动的起止时间,通常每个活动占据一行。 | |
![]() | |
|
| |
![]() | |
| 两种进度规划方法:关键路径法CPM, 和关键链法CCM 关键路径是项目中时间最长的活动顺序,决定着可能的项目最短工期。 | |
控制进度是监督活动状态,更新项目进展,管理进度基准变更,以实现计划的过程。本过程的主要作用是,(甘特图跟进+挣值分析)发现偏离,从而可以及时采取纠正和预防措施,纠偏纳入整体变更管理流程,以降低风险。
进度控制关注如下内容。
(1)判断项目进度的当前状态。
(2)对引起进度变更的因素施加影响,以保证这种变化朝着有利的方向发展。
(3)判断项目进度是否已经发生变更。
(4)当变更实际发生时严格按照变更控制流程对其进行管理。
通常可用以下一些方法缩短活动的工期:
(1)赶工,投入更多的资源或增加工作时间,以缩短关键活动的工期。
(2)快速跟进,并行施工,以缩短关键路径的长度。
(3)使用高素质的资源或经验更丰富的人员。
(4)减小活动范围或降低活动要求。/
(5)改进方法或技术,以提高生产效率。
(6)加强质量管理,及时发现问题,减少返工,从而缩短工期。
|
| |
| Delphi法--德尔菲法 | 没有历史数据的情况下,可以考虑用德尔菲法估算。 类似打牌法,实践中的打牌法比较有意思,参与评估任务时间的团队成员手上都拿着1-10的扑克牌。当大家评估某一个任务时,每个人都出牌,来标注自己心中认为需要多少时间来完成任务。比如,有人出3,有人出5,有人出8,然后,让出的最多和最少的两人阐述自己的理由,然后大家再出牌一次,直到大家出的牌都很接近了,此项任务的时间就评估完成了。这实际上就一种德尔菲法的变形。 |
| 类比估算法 | 需要结合可重用代码因素 |
| 参数估算 | |
| 储备分析 | 应急储备与“已知-未知”风险相关,需要加以合理估算,用于完成未知的工作量。 应急储备可取活动持续时间估算值的某一百分比、某一固定的时间段,或者通过定量分析来确定,如蒙特卡洛模拟法。 可以把应急储备从各个活动中剥离出来,汇总成为缓冲。随着项目信息越来越明确,可以动用、减少或取消应急储备。 ----------------------------------- 管理储备是为管理控制的目的而特别留出的项目时段,用来应对项目范围中不可预见的工作。管理储备用来应对会影响项目的“未知-未知”风险。 管理储备不包括在进度基准中,但属于项目总持续时间的部分。依据合同条款,使用管理储备可能需要变更进度基准。 |
| 依赖关系 | |
| 提前量/滞后量 | |
| 前导图法、紧前关系法、单代号网络图 PDM(Precedence Diagramming Method) 单代号网络图可以表现四种前后逻辑关系,FS;FF;SF;SS;等 | 用圆圈代表活动,节点圆圈编号即可。
|
| 箭线图ADM (Arrow Diagramming Method) 箭线图只能表现一种前后逻辑关系FS. | 用箭线代表活动,箭线和节点均需要编号,所以叫双代号网络图。
|
| 步骤 | |
| 关键路径 | |
| 关键链法 | 关键链法(CCM)是一种进度规划方法,这种方法建立在关键路径法之.上,考虑了资源分配、资源优化、资源平衡和活动历时不确定性对关键路径的影响。 允许项目团队在任何项目进度路径上设置缓冲,以应对资源限制和项目的不确定性。关键链法引入了缓冲和缓冲管理的概念。
应该根据相应活动链的持续时间的不确定性,来决定每个缓冲时段的长短。--旦确定了“缓冲活动”,就可以按可能的最迟开始与最迟完成日期来安排计划活动。这样一-来,关键链法不再管理网络路径的总浮动时间,而是重点管理剩余的缓冲持续时间与剩余的活动链持续时间之间的匹配关系。 关键链是由杜邦公司的高德拉特博士提出的一种基于约束理论的项目管理方法。关键链法管理所取得的一个好处是提前完成项目。它通常比关键路径法至少提前1/3的时间。对重点工作进行管理,而不是像传统项目管理那样需要面面俱到,要对每一项工作定期地记录工作进展、分析偏差和跟踪项目的进展情况。
1、关键路径法是工作安排尽早开始,尽可能提前。 2、关键链法的工作安排是尽可能推迟。 关键链实施步骤:项目管理--关键链方法_小虎Sam很忙的博客-CSDN博客_关键链法的六个步骤 如图1所示,在关键路线法中,任务A、D、E、F组成了项目的关键路线,但如果假设任务C和任务E需要同一种资源,例如需要同一台设备进行加工,而该设备一次只能执行一项作业,那么事实上任务C和任务E是不能同时进行的。因此,在考虑资源约束的情况下,项目的关键任务为A、D、E、C、F,这五个任务就构成了项目的关键链。
|
| 4. 资源优化技术 |
如果共享资源或关键资源只在特定时间可用,数量有限,或被过度分配,如一个资源在同一时段内被分配至两个或多个活动,就需要进行资源平衡。 资源平衡往往导致关键路径改变,通常是延长。
相对于资源平衡而言,资源平滑不会改变项目关键路径,完工日期也不会延迟。也就是说,活动只在其自由浮动时间和总浮动时间内延迟。因此,资源平滑技术可能无法实现所有资源的优化。
1. 关键路径确定后, 发现资源冲突, 如给定时间内资源不可用或者不够用的情况. 先做资源平衡, 调整相关活动的开始或者结束时间, 可能会改变关键路径, 调整项目计划. 2. 资源平衡后, 关键路径确定后. 如果发现某个资源使用过度, 然后找非关键路径上的非关键活动, 利用活动的总浮动时间和自由浮动时间,做资源调用,平滑某类资源的使用量. |
| 5,进度压缩技术 | 赶工: 对于关键路径活动, 延期了, 加班+加资源+加费用. 快速跟进: 风险可控的情况下,串行变并行,增加了风险. |
| 6. 计划评审技术 三点估算法 PERT-Program Evaluation and Review Technique | 评估计划的活动工时和总工期.
|
| 1. 分析进度偏差的影响 | (1)分析产生进度偏差的工作是否为关键活动。
(2)分析进度偏差是否大于总时差。
(3)分析进度偏差是否大于自由时差。
|
| 2. 项目计划调整 | (1)关键活动调整法。 在项目计划图中,关键路径上的活动没有机动时间。关键活动的调整是项目进度更新的重点。
2) 非关键活动的调整方法有三种:
(3)增减工作项目法。 由于编制计划时考虑不同,或因某些原因需要增加或取消某些工作,则需重新调整网络计划,计算网络参数。由于增减工作项目不应影响原计划总的逻辑关系,以便使原计划得以实施。
若资源供应发生异常时,应进行资源调整。资源供应发生异常是指因供应满足不了需要,如资源强度降低或中断,影响到计划工期的实现。资源调整的前提是保证工期不变或使工期更加合理。资源调整的方法是进行资源优化。 |
1. 自由时差,总时差
| 自由时差,总时差 |
|
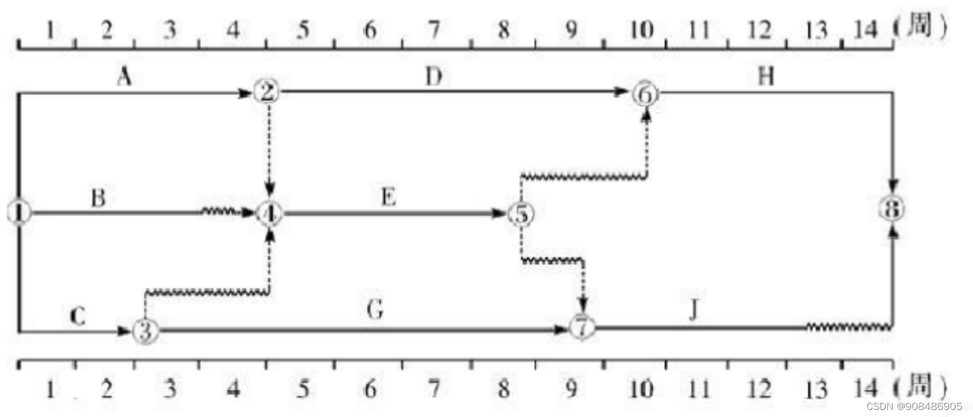
| 前锋线时标网络图: | 基于时标网络图,从检查时刻的时标点出发,用点划线依次将各项工作实际进展位置点连接而成的折线。通过实际进度前锋线与原进度计划中各工作箭线交点的位置来判断工作实际进度与计划进度的偏差。
|
| 时标网络图读图规则 |
1. 关键路径:关键线路上的工作时间段都是前后衔接紧密,没有间隔,无波浪线 2. 总工期,看时标就好 3. 活动总时差:在时标网络图中,计算哪个工作的总时差,就以哪个工作为起点工作,寻找通过该工作的所有线路,然后计算各条线路的波形线的长度和,波形线长度和的最小值就是该工作的总时差。 4、自由时差,就是该工作箭线上波形线的长度,但是有一种特殊情况,如果该工作的箭线上没有波形线,但是该工作与其紧后工作之间都有时间间隔,此时该工作的自由时差为该工作与其紧后工作时间间隔的最小值。
其中E工作的箭线.上没有波形线,但是E工作与其紧后工作之间都有时间间隔,此时E工作的自由时差为E与其紧后工作时间间隔的最小值,即E的自由时差为1。 二、E的总时差,不管E前面的活动,以E为起点,到终点的线路上波形线总和,最小的那条路径为关键路径。
|
| 时标网络图画图规则 | ![]() |
3.2. 22年5月


